Local en Renta en Blvd. 14 Sur 3902 esquina 39 Oriente, Col. Anzures

Compartir via: Descargar PDF

Renta

$ 132,000 MXN


C. 14 Sur 3902, Zona Sin Asignación de Nombre de Col 50, Anzures, 72530 Heroica Puebla de Zaragoza,

UBICACIÓN: https://goo.su/bOUXZ

Plaza Comercial con excelente flujo, con caseta de vigilancia y vigilante

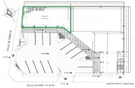
Local 1 en Renta en esquina del Blvd. 14 sur y la 39 Oriente en dos niveles.

En la Plaza se encuentra HSBC y Farmacias Medina.

Enfrente se encuentra Wild Fork, Harmon Hall y Gasolinera Shell.

El local tiene al frente 4 cajones de estacionamiento, y la plaza cuenta con 15 cajones en total.

FRENTE DENTRO DE LA PLAZA: 18 m
FRENTE SOBRE 39 OTE: 9 m

*Precio de Renta + 7% de Mtto. + IVA

Disponible en Noviembre 2025


150 m2
Planta Alta
150 m2
Planta Baja
150
m2 Terreno

local
renta
39
oriente
3902
esquina
14
sur
anzures
Contacto